設置・接続説明書

日阪製作所 プレート式熱交換器の設置・接続説明書


>> P.*6

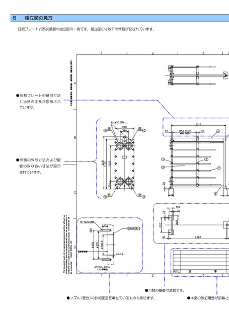
日阪プレート式熱交換器の組立図の一例です。組立図には以下の情報が記されています。●伝熱プレートの締付寸法と当品の全長が図示されています。●当器の外形寸法および配管の取り合い寸法が図示されています。●ノズル(管台)の詳細図面を載せているものもあります。●本図の改訂履歴が記載され●当器の基礎寸法図です。6組立図の見方


<< | < | > | >>